Ref.: 5814

Exclusivo chalet de obra nueva para comprar en Ordino

Andorra - Ordino | Chalet-Torre

Superficie
615 m2
dormitorios
5
baños
5
Precio
5.611.715 €

Solicite más información sobre Exclusivo chalet de obra nueva para comprar en Ordino

Ref.: 5814

| 5814

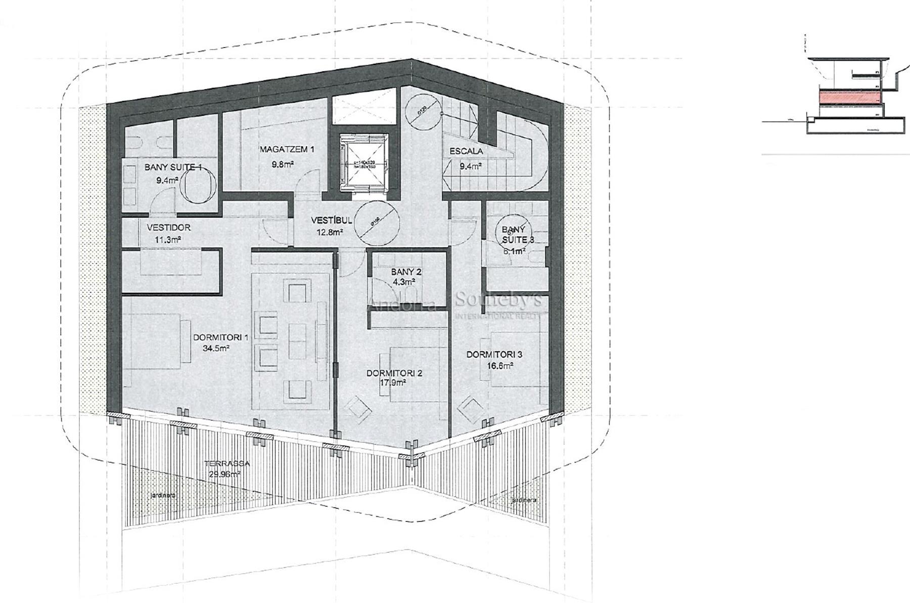
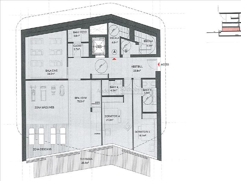
Chalet exclusivo en venta en el encantador pueblo de Ordino, primer destino del Principado de Andorra designado como Reserva de la Biosfera. Esta sensacional propiedad forma parte de una promoción de nueva construcción que destaca por su privilegiada ubicación así como por su diseño lujoso, ideado por el prestigioso estudio de arquitectura Rafael De la-Hoz Arquitectes. Se trata de un inmueble de nueva construcción de aproximadamente 615 m² construidos, que incluye múltiples terrazas orientadas de manera óptima para aportar la máxima exposición posible a la luz natural, mientras se disfrutan de las magníficas vistas de Ordino y sus valles. La planta baja está destinada a la desconexión, por lo que cuenta con una zona de spa y gimnasio, además de una sala de cine. En esta planta también hay dos habitaciones dobles en suite con baño completo, un aseo y una zona de almacenamiento, así como una amplia terraza. En el primer piso se encuentra la continuación de la zona de descanso, con dos habitaciones en suite con baño completo y la suite principal de la propiedad, con vestidor y baño completo. Todas las habitaciones tienen salida a la terraza. La segunda planta está distribuida en una gran cocina con isla central, equipada con las últimas tecnologías, y abierta a un acogedor comedor con acceso a la terraza. En esta zona también hay un salón y una biblioteca, ambos espacios también con salida a la terraza, un aseo y una zona de lavandería. En la última planta, con techos inclinados, se encuentra un despacho funcional. La propiedad dispone de 2 garajes para 3 coches cada uno, además de un trastero. Los acabados son elegantes y de la más alta calidad, y el diseño de la propiedad combina elementos modernos, como las grandes cristaleras, con la arquitectura clásica andorrana en piedra y madera para integrarse de la mejor manera en el entorno y no perder la esencia del país.

Características

  • Camáras de vigilancia
  • Lavadero
  • Despacho
  • Ascensor adaptado silla de ruedas
  • Armarios empotrados
  • Soleado
  • Cocina tipo office
  • Terraza
  • Aire Acondicionado
  • Calefacción
  • Parking
  • Alarma
  • Vistas a la montaña
  • Transporte público cerca
  • Chimenea
  • Zona verde
  • Agua caliente
  • Trastero

Calificacion Energetica A

Distancias

A menos de 5km

  • Sornàs 1,1 km
  • Ansalonga 1,6 km
  • Aldosa (L' ) (La Massana) 2,1 km
  • La Cortinada 2,5 km
  • La Massana 2,6 km
  • Arans 3,4 km
  • Escas 3,7 km
  • Anyós 5,0 km

A menos de 10km

  • Llorts 5,1 km
  • Xixerella 6,2 km
  • Arinsal 6,7 km
  • Serrat (El) 8,3 km
  • Pal 8,7 km
  • Molleres 9,4 km

A la capital

  • Escaldes-Engordany 8,1 km
  • Andorra la Vella 8,7 km

Siguientes pasos

Contacte con nuestro equipo de consultores inmobiliarios para saber más sobre esta exclusiva promoción.

Solicite más información sobre Exclusivo chalet de obra nueva para comprar en Ordino

Ref.: 5814