Рефе.: 5963
Купить роскошную квартиру в новой постройке у подножия склонов Тартера.
Andorra - Tarter (El) | квартира
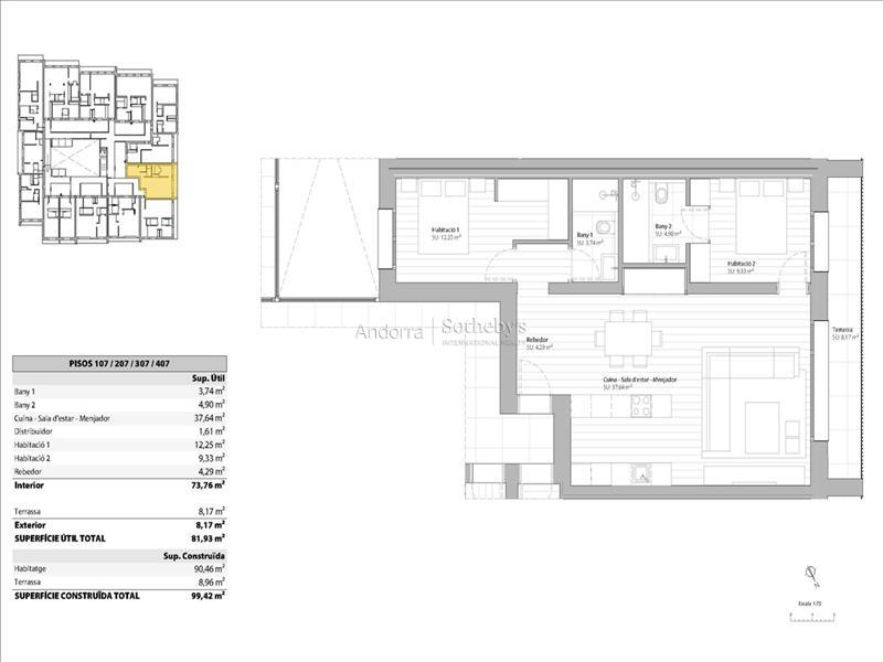
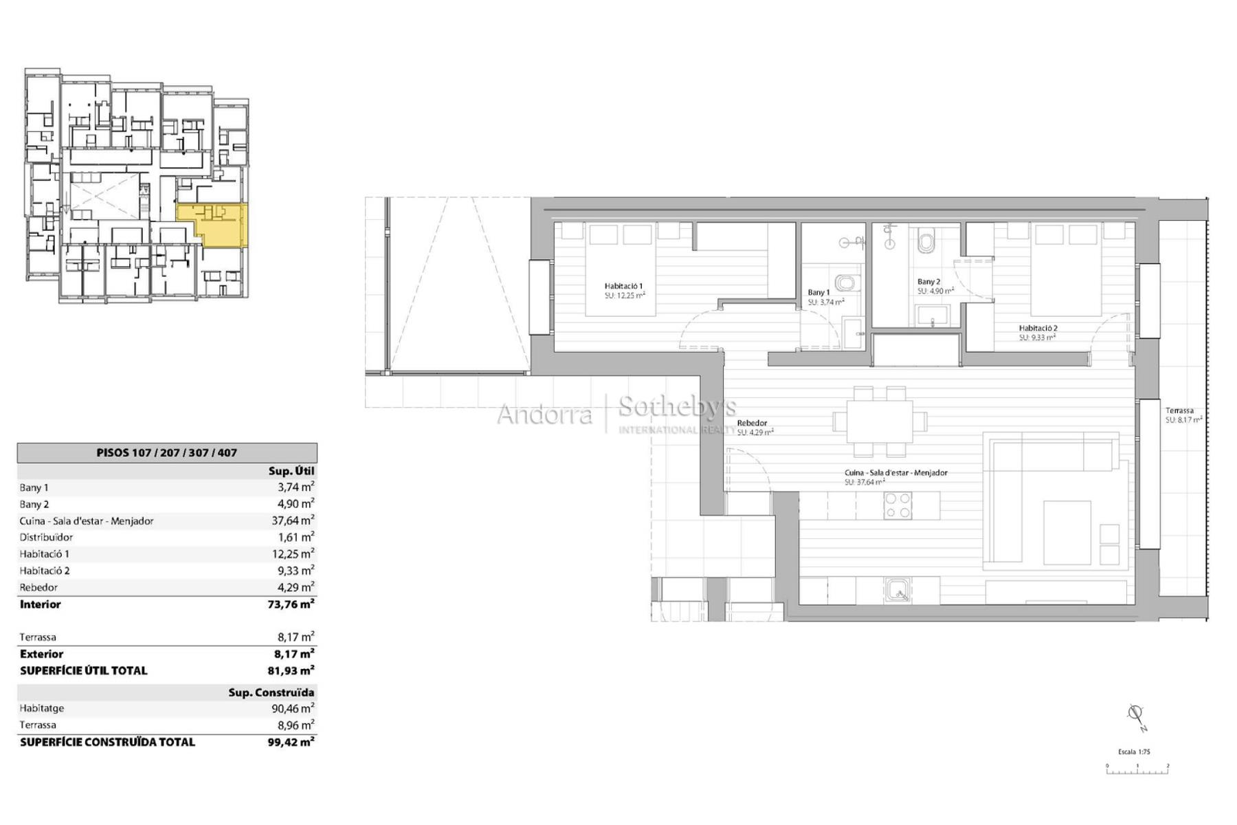
Площадь
99 m2
общежития
2
ванная
2
цена
850.000 €
| 5963
Откройте для себя эту великолепную новую работу, расположенную в Эль-Тартере. Этот отель площадью 99,40 м2 предлагает современное и просторное пространство, где можно в полной мере насладиться. Этот дом с двумя просторными спальнями с двуспальными кроватями, включая потрясающий люкс, идеально подходит для тех, кто ищет комфорт и стиль. Кухня, интегрированная в гостиную, создает уютную и функциональную атмосферу. Отсюда вы можете выйти на очаровательную террасу площадью 8,95 м2 с панорамным видом на Валь-де-Канильо и полуденное солнце. Представьте себе, что вы наслаждаетесь трапезой на свежем воздухе или расслабляетесь, любуясь потрясающими видами и закатами. В здании есть собственный гараж на две машины, что обеспечивает дополнительный комфорт и позволяет защитить ваш транспорт от холода и снега. Этот дом оснащен высококачественными удобствами, включая энергосберегающее светодиодное освещение, пол с подогревом и элегантный электрический камин. Кроме того, он имеет домашнюю автоматизацию, которая позволяет легко контролировать и управлять домашними системами со смартфона. Высококачественная бытовая техника подарит вам исключительные кулинарные впечатления, а сияющие полы и керамогранит добавят тепла, изысканности и долговечности. В сообществе есть спа-центр и общественная зона отдыха, где вы можете насладиться бассейнами и джакузи, создавая атмосферу благополучия и расслабления. Кроме того, центральный двор с зеленой зоной дополняет эту среду, обеспечивая тихое и естественное пространство. Не упустите возможность жить в этом замечательном доме в Эль-Тартере.Особенности
- У подножия склонов
- Встроенные шкафы
- Солнечный
- терраса
- отопление
- Стоянка
- Вид на горы
- Общественный транспорт поблизости
- Зеленая зона
- Горячая вода
- 看门人
Что мы ищем?
В менее 5km
- Ransol 1,3 km
- Incles 1,3 km
- Aldosa (L' ) (Canillo) 2,4 km
- Soldeu 3,0 km
В менее 10km
- Canillo 5,4 km
- Prats 6,6 km
- Forn (El) 8,2 km
В столице
- Escaldes-Engordany 15,5 km
- Andorra la Vella 16,6 km
Следующие шаги
Свяжитесь с нашей командой консультантов по недвижимости, чтобы узнать больше об этой эксклюзивной новостройке.
Запросить дополнительную информацию о Купить роскошную квартиру в новой постройке у подножия склонов Тартера.
Рефе.: 5963